
The studio engaged SENT, a non-profit multiservice community center in the Highland Crest neighborhood of Topeka, to design a prototype home that could be used through the neighborhood. In SENT’s unique development model, the organization would use funding tools to subsidize both income-qualified housing as well as market rate homes. The studio’s project would be a market rate house that would mirror the smaller size of the homes in the neighborhood, originally built to house service families for a nearby Air Force Base which was closed decades ago. The target for the project was a 3 bedroom, 2 bath house that would be around 1200 ft2, with all-electric net zero performance and a focus on wellness-related passive design strategies such as daylight, outdoor spaces and views, and quiet building systems. Wellness and health was of particular important to SENT; at the time
the organization was also creating a center for counseling and mental health and had recently opened an award-winning early childhood education center. SENT would build the first iteration of the prototype on a vacant lot down the street from their community center.







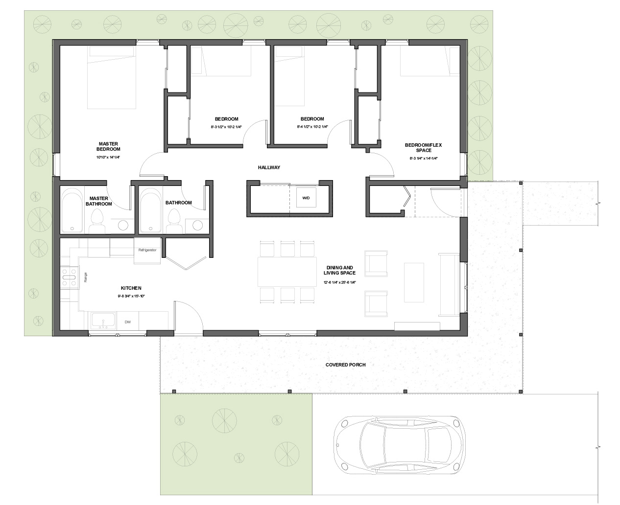
Process. Six students worked on this project, starting with an analysis of the larger neighborhood and the site. Students then spent 13 weeks developing their projects from concept through design development. A notable concept that was part of the selected final design, created by student Lleandra Fischer, was to make the bedrooms slightly more compact, which allowed the addition of a fourth bedroom. The extra bedroom was intended to give families more flexibility, retaining a room as a playroom, storage, study room, or home office even in larger families that needed 3 bedrooms. The project was build by a local GC to the studio’s design and specifications, using a combination of passive features and energy efficiency measures that balanced affordability with performance, and integrated a PV array. The house is Topeka’s only net zero home at the time it was sold in 2023 and SENT has since received grants to continue new infill construction of net zero homes in Hi-Crest.









Students: Yvette Fabela, Leandra Fischer, Hannah Fowler, Andrew Fugate, Alaina Holmes, Jordan Pollart
