Our Net+ Studio team has taken advantage of various software programs to make our project a reality. We have mainly used the network sharing capabilities of the BIM Software called Revit for studio wide collaborative efforts. With this program we were able to make changes to our document that houses the studio wide model, various 3D and 2D views of the exterior and interior of the building, and fine-tuned construction details. With the use of this program, errors were able to be minimized through Revit’s function of ownership and relinquishment of specific model elements by one individual at a time. To ensure that the files did not become too large, the architectural and structural drawing were split into two separate documents. This created ease of use for the studio but did not limit our capabilities as all students had access to both files and they could easily be combined when printed as pdf files.
From these documents the studio was able to create fabrication documents that gave information on the exact number of each material that was needed to be purchased by the studio to start the prefabrication process, along with additional materials that would need to be applied in field. This information was broken down into various categories of a cost estimation spreadsheet lead by three students with regular confirmation from other studio members and our professor. The prices used for cost estimation of materials came from big box stores such as Menards, regional labor and material estimates, and prices direct from manufacturers.
With our cost estimation spreadsheet and fabrication drawings we were able to begin the procurement process. When doing this, we made a point to order the materials that would take the longest amount of time for processing and shipping first. Additionally, we mainly ordered items for the in-shop prefab process before any additional materials were purchased. Some elements of the cost estimation had been finally determined while others were still subject to change. Because of this it was important for the studio to stay flexible and ready to change the cost estimation spreadsheet accordingly while at the same time continue forward in the procurement process.
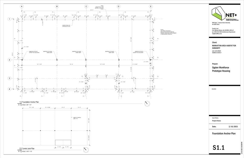
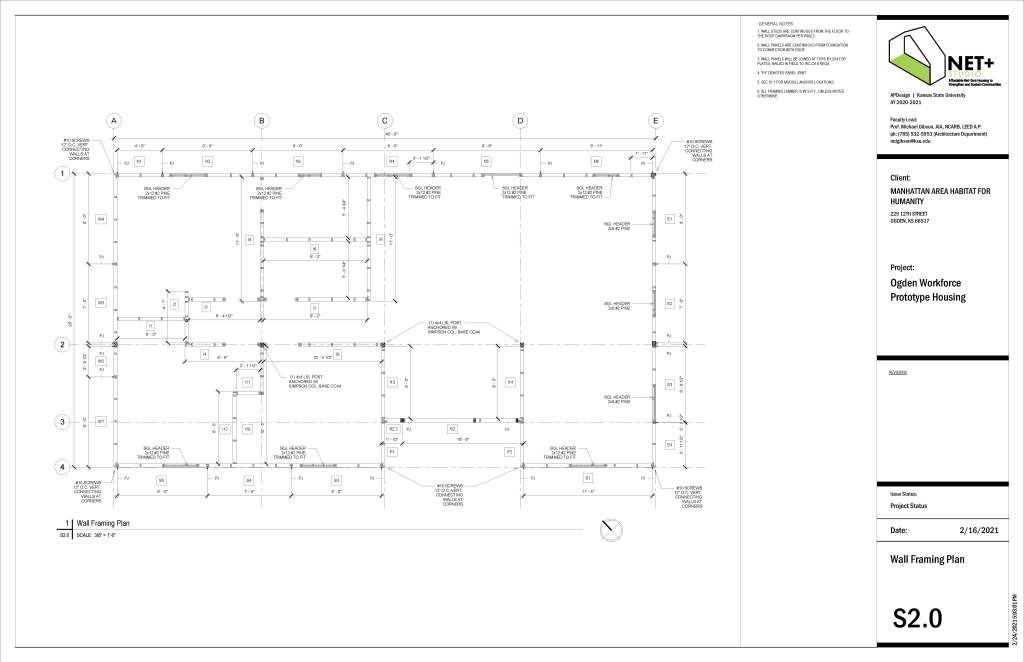
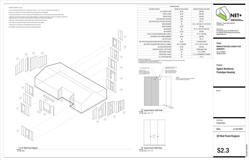
The importance and necessity of the fabrication drawings became even greater once items were delivered to the shop and the prefabrication process began. These documents were vital to ensuring any member of the studio could look at the image and be able to properly select materials and assemble panels of the house to the drawing requirements. Several drawings of each wall panel that was to be prefabbed were created to be able to distribute so multiple panels could be built at the same time. During the procurement process two framing platforms to build these panels were constructed, making this all possible. By taking full advantage of the software tools and collaborative knowledge of the studio this construction process was able to take place with maximum efficiency.







